Nahe der Universität: Ein- oder Zweifamilienhaus mit vielen Extras
33619 Bielefeld, Zweifamilienhaus zum Kauf
Referenz
Dieses Objekt wurde bereits erfolgreich vermittelt.
Objektbeschreibung
Beschreibung
++ Beliebte Wohnlage nahe der Universität ++
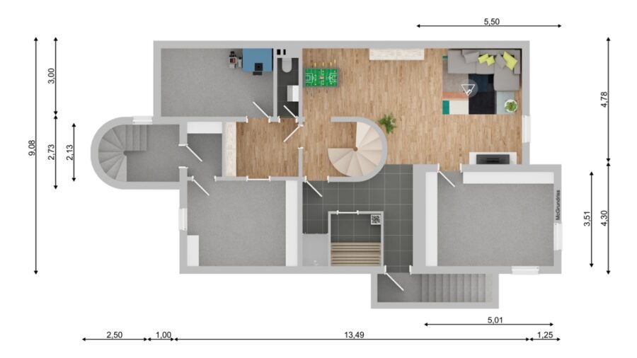
Insgesamt stehen Ihnen 210,00 m² Wohn-/Nutzfläche zur Verfügung.
Diese Flächen teilen sich wie folgt auf:
Wohnfläche: 185,00 m² im Erd- und Obergeschoss
Nutzfläche: 25,00 m² im ausgebauten Dachgeschoss
Weitere Nutzflächen (Gäste-/Arbeitszimmer mit Dusche, Sauna etc.) sind im Keller vorhanden.
Die Vorzüge dieser Immobilie auf einen Blick:
+ Idyllische und ruhige Wohnlage (Sackgasse)
+ Zweifamilien-Reihenendhaus (auch als Einfamilienhaus nutzbar)
+ Außenliegendes Treppenhaus mit direktem Kellerzugang
+ Beide Wohnetagen sind aber auch durch eine Treppe miteinander verbunden
+ Wärmedämmverbundsystem (WDVS) zur Westseite
+ Wohneinheit 1 im Erdgeschoss mit ca. 120 m² Wohnfläche
+ Wohneinheit 2 im Obergeschoss mit ca. 65 m² Wohnfläche und zusätzlich ca. 25 m² ausgebauter Nutzfläche im Dachgeschoss
+ Eigene Garage mit Grube (Baujahr: 2000)
+ Garten mit Südausrichtung
+ Terrasse im Garten
+ Dachterrasse
+ Keller
+ Beheiztes Gästezimmer (Größe: ca. 30 m²) mit separater Sauna und Dusche im Keller
+ Badezimmer mit Dusche, Eckbadewanne etc.
+ Teilweise ist eine Fußbodenheizung vorhanden
Für weitere Informationen senden Sie uns bitte eine schriftliche Anfrage mit Ihren vollständigen Kontaktdaten (Name, Anschrift, Telefon, E-Mail).
Wir freuen uns auf Ihre Nachricht!
Ausstattung
BAUWEISE
Baujahr 1978; Umbaujahr: 2000. Massive Bauweise mit Unterkellerung, Stahlbetondecken, WärSatteldach, Dachterrasse, vorgesetztes Türmchen als Treppenhaus.
AUSSTATTUNG
Außenfassade: Die Außenfassade ist verputzt und gestrichen. Im Jahr 2000 wurde ein Treppenhaus in Form eines Türmchens an die Vorderseite des Hauses angebaut.
Dach: Bei dem Dach handelt es sich um ein Satteldach mit Pfanneneindeckung mit Wärmedämmung.
Fenster: Holzfenster mit Doppelverglasung (Einbaujahr: 1978); Kunststofffenster mit Isolierverglasung (Einbaujahr: 1999); teilweise abschließbar.
Bäder: Das Badezimmer im Erdgeschoss wurde im Jahr 2000 saniert und verfügt über eine bodentiefe Dusche, eine Eckbadewanne, einen Waschtisch, eine Toilette, ein Pissoir und einen Handtuchheizkörper. Das innenliegende Badezimmer im Obergeschoss verfügt über eine Badewanne, einen Waschtisch und eine Toilette.
Gäste-WC: In beiden Wohneinheiten sind Gäste-WCs vorhanden.
Garten: Pflegeleichter Garten mit Rasenfläche und Zierpflanzen.
Terrasse: Vom Wohnbereich im Erdgeschoss befindet sich der Zugang auf die Terrasse mit Südausrichtung.
Dachterrasse: Die sonnige Dachterrasse zur Südseite ist vom Obergeschoss begehbar und verfügt über einen herrlichen Ausblick in den Garten.
Heizung: Gas-Brennwertheizung (Hersteller: Viessmann; Baujahr: 2008).
Pkw-Stellplätze: Auf der gepflasterten Hoffläche vor dem Haus stehen zwei Pkw-Außenstellplätze zur Verfügung.
Garage: Eine massiv gebaute Garage aus dem Jahr 2000 mit Flachdach, elektrischem Sektionaltor und einer Grube rundet dieses attraktive Angebot ab.
ENERGIEAUSWEIS
125,8 kWh/(m²*a); Bedarfsausweis; Energieträger: Erdgas E, Strom-Mix; Baujahr Haus: 1977, Baujahr Heizung: 2008; Effizienzklasse: D; Gültig bis zum 03.08.2025.
KÄUFERCOURTAGE
Bei Abschluss eines notariellen Kaufvertrages über dieses nachgewiesene Objekt wird an die Firma Niederwall Immobilien eine Käufercourtage in Höhe von 3,57% inkl. gesetzlicher MwSt. vom beurkundeten Kaufpreis fällig.
Sonstige Informationen
ENERGIEAUSWEIS
125,8 kWh/(m²*a); Bedarfsausweis; Energieträger: Erdgas E, Strom-Mix; Baujahr Haus: 1977, Baujahr Heizung: 2008; Effizienzklasse: D; Gültig bis zum 03.08.2025.
KÄUFERCOURTAGE
Bei Abschluss eines notariellen Kaufvertrages über dieses nachgewiesene Objekt wird an die Firma Niederwall Immobilien eine Käufercourtage in Höhe von 3,57% inkl. gesetzlicher MwSt. vom beurkundeten Kaufpreis fällig.
Alle Angaben erfolgen durch den Eigentümer.
Irrtum und Zwischenvermarktung vorbehalten.
Lage
Beliebte und gesuchte Wohnlage im Bielefelder Stadtteil Großdornberg mit kurzen Wegen zur Universität. Neben der unmittelbaren Nähe zu den Einkaufsmärkten, Ärzten, Gastronomiebetreiben und Freizeiteneinrichtungen wird diese Wohnlage vor allem Naturliebhaber begeistern, denn die Felder, Wiesen und Wäldern sowie der Johannisbach befinden sich quasi vor der Haustür. Dank der guten Infrastruktur gelangen Sie schnell und bequem in die Bielefelder Innenstadt, aber auch in die umliegenden Städte sowie zu den Autobahnen A2 und A33.
Die ungefähre Position der Immobilie auf Google Maps ansehen (Link auf externe Website)



















